213 Fayetteville Street
213 Fayetteville Street
Raleigh, NC
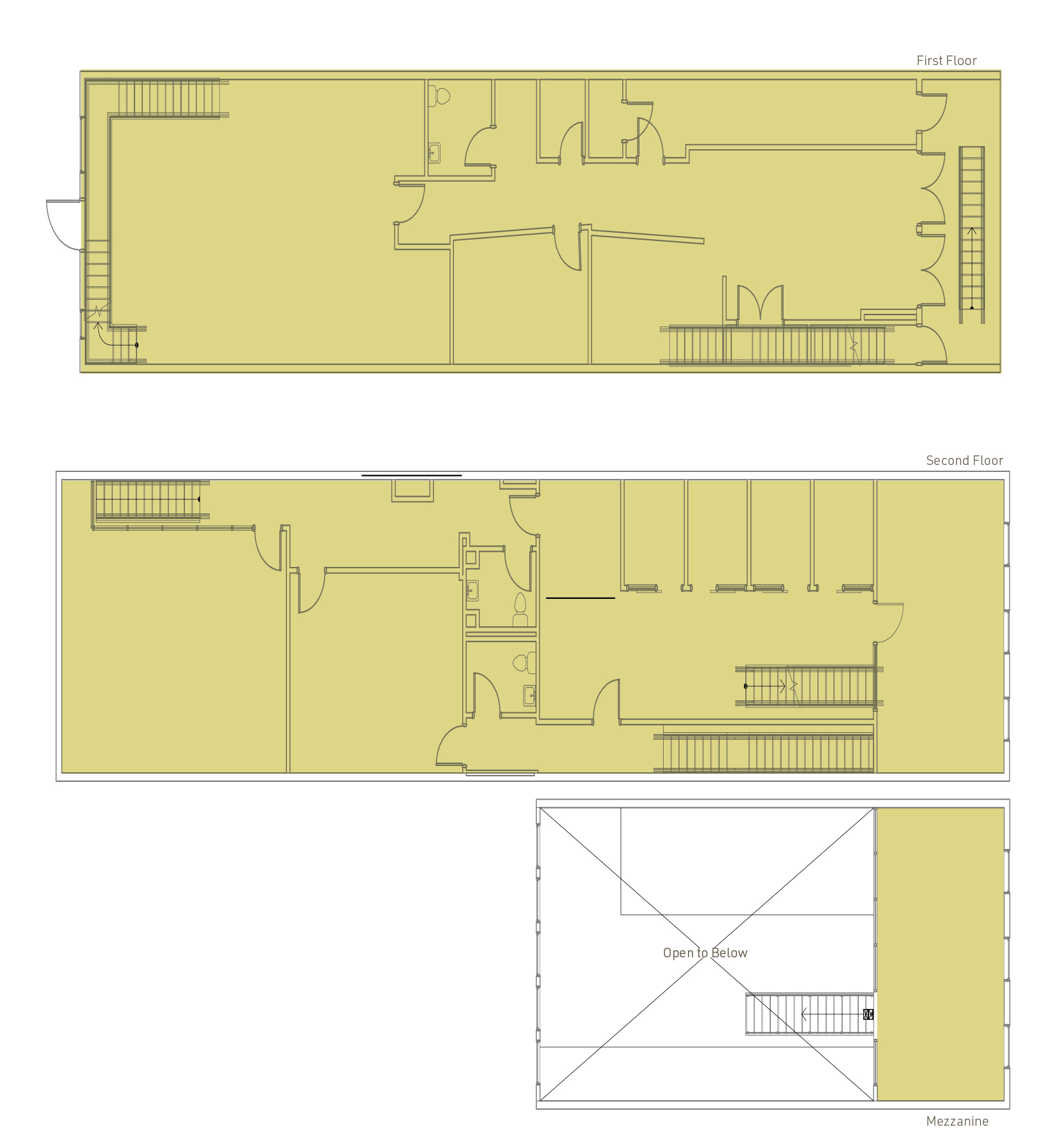
- Spacious suite with exposed brick detailing and plentiful natural light
- Great location in proximity to all of Raleigh's urban amenities
- Includes access to a kitchenette and a large conference room
Suite/Building
213 Fayetteville Street
List Type
Retail
Square Footage
4,840
Date Available
View Loopnet Listing

Take a Virtual Tour

Floorplan
Location
- Centralized, downtown location on Fayetteville Street near the City Plaza, Nash Square, Moore Square, and NC State Capitol
- Three parking decks within 1 block radius
- Steps from restaurant and entertainment amenities

TOP