919.834.8350
Our Company
Our History
OUr Team
Our Companies
Awards
Accolades
In The News
OUr Portfolio
Our Portfolio
Properties WITH AVAILABILITY
Our History
Our Team
Our Companies
Awards | Accolades | News
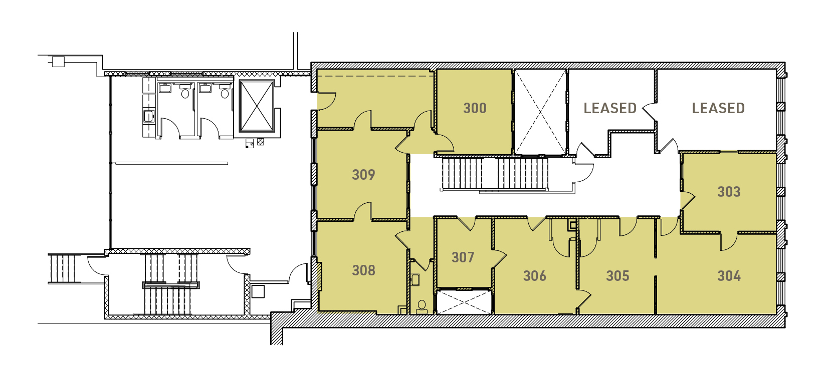
Suite Details
< Back to Our Portfolio
Request Information
Download Info Sheet
Carolina Trust Building
230-232 Fayetteville Street
Raleigh, NC
Beautifully restored historic property with hardwood floors and exposed brick walls
Multiple private offices/meeting rooms allows for flexible configuration ideal for tenants of various sizes
Access to kitchenette
Downtown location, steps away from all of Raleigh’s urban amenities
Suite/Building
230 Fayetteville St, Third Floor
List Type
Office
Square Footage
200-3,009
Date Available
View Loopnet Listing
Take a Virtual Tour
Floorplan
No images available
Location
Exclusive Fayetteville Street address
Less than one block from the post office and courthouse
TOP
Empire Brokerage
Empire Hard Hat Construction
The L Building
All Saints Chapel
The Stockrooom at 230
The Glass Box
Empire Eats
Empire Eats Catering