Odd Fellows Building
19 W Hargett Street
Raleigh, NC
- Built in 1924, one of Raleigh’s seven original skyscrapers and listed on the National Register of Historic Places
- Great location in the heart of downtown Raleigh near plenty of shops and restaurants, and a few blocks from the state legislature building, making the suite perfect for a lobbyist
- Tenants include professional and nonprofit organizations
Suite/Building
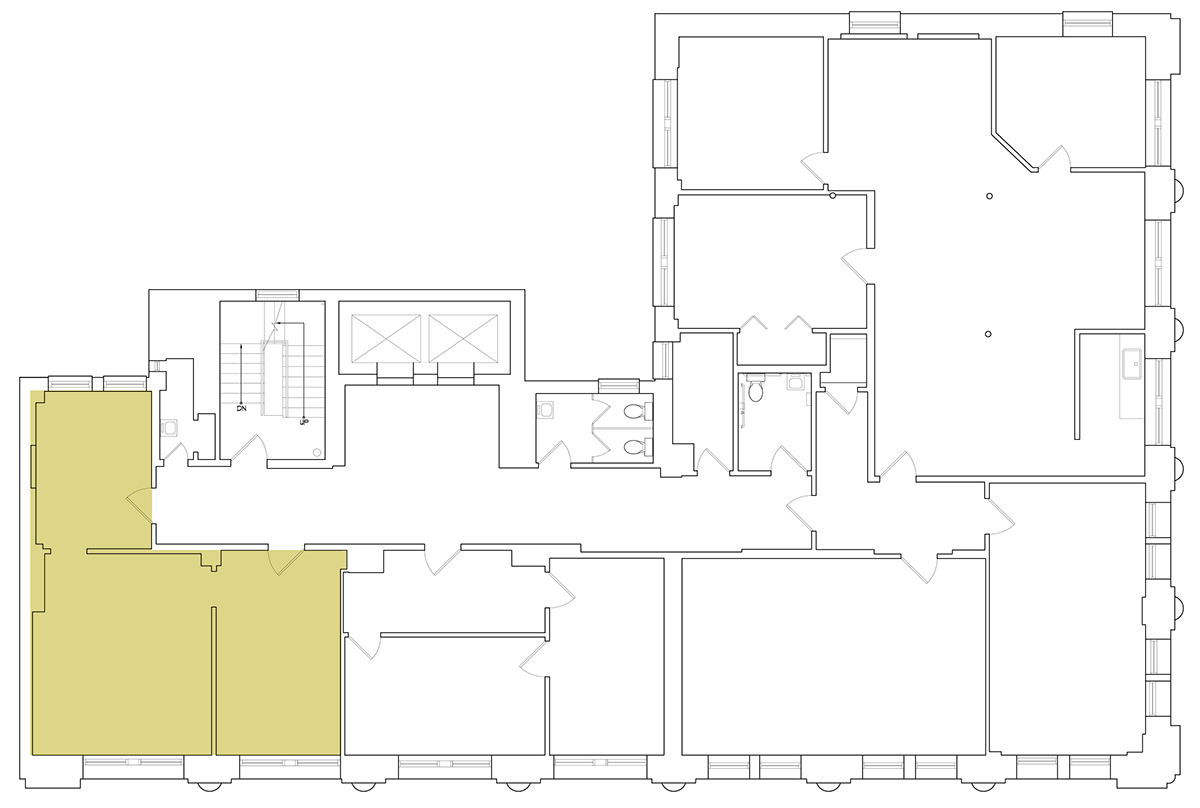
Suite 904
List Type
Office
Square Footage
918
Date Available
View Loopnet Listing

Take a Virtual Tour

Floorplan
Location
- Across from the Wells Fargo building with easy access to federal and county court buildings, as well as to the State Capitol
- Beautiful space on Hargett Street, the best pedestrian street in downtown Raleigh
- Great location between Fayetteville Street, downtown Raleigh’s Main Street, and Nash Square, an urban green park
- Walking distance to restaurants, museums, galleries, city parks, the State Capitol and Duke Energy Center for the Performing Arts
- City parking deck within less than two blocks

TOP