The Occidental
1001 Wade Avenue
Raleigh, NC
- Historic Occidental Building listed on the National Register of Historic Places
- Three private offices/meeting rooms and private bathroom access
- City of Raleigh Landmark property featuring Roman bond brick piers and original brick terraces
- Beautifully renovated outdoor amenity area and access to common conference room and kitchenette
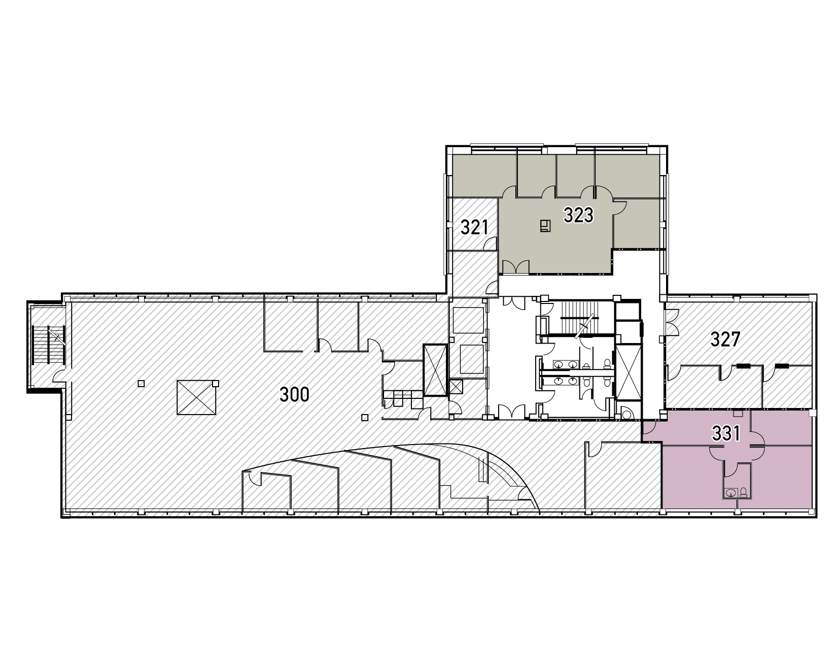
Suite/Building
Suite 331
List Type
Office
Square Footage
1,157
Date Available
View Loopnet Listing

Take a Virtual Tour

Floorplan
Location
- Premier inside-the-beltline location in a quiet setting with optimal access to regional thoroughfares
- Ideally situated in walkable Village District location with quick access to RDU, RTP, and downtown Raleigh

TOP